🏡 CHI 3,5 TỶ ĐỒNG XÂY NHÀ 4 TẦNG HIỆN ĐẠI CÓ PHÒNG CHƠI RIÊNG CHO MÈO
✨ Không gian sống lý tưởng cho cả gia chủ và thú cưng
Dự án thiết kế nhà phố 4 tầng này là một minh chứng hoàn hảo cho xu hướng kiến trúc hiện đại: tối ưu công năng, tinh giản thẩm mỹ, và đặc biệt – chăm chút đến thú cưng như một thành viên trong gia đình.
Với chi phí xây dựng khoảng 3,5 tỷ đồng, căn nhà không chỉ gây ấn tượng bằng vẻ ngoài thanh lịch, nội thất tối giản, mà còn nổi bật bởi phòng chơi riêng dành cho mèo – nơi các “boss” có thể tự do leo trèo, vui chơi và thư giãn dưới ánh nắng chan hòa
.
🛋️ Thiết kế phòng khách cao cấp & ấm cúng
Không gian phòng khách sử dụng tông màu trung tính chủ đạo, nổi bật với bộ sofa cong mềm mại cùng ghế thư giãn màu cam đất. Trần nhà cao, thiết kế giật cấp cùng hệ thống chiếu sáng âm trần giúp không gian thoáng đãng, hiện đại. Hệ tủ âm cầu thang tận dụng tối đa diện tích, mang đến sự tiện nghi mà vẫn giữ được thẩm mỹ tinh tế.
🍽️ Bếp và phòng ăn tối giản nhưng sang trọng
Khu vực bếp – ăn được bố trí liên thông, sử dụng nội thất gỗ sáng màu cùng ánh sáng tự nhiên giúp không gian trở nên ấm cúng, gần gũi. Bàn ăn gỗ nguyên tấm kết hợp ghế đệm mềm, đèn thả trần tối giản tạo nên tổng thể đồng nhất và dễ chịu
.
🌿 Khoảng sân trong xanh mát
Một góc sân nhỏ được thiết kế như khu vườn thiền với cây xanh, sỏi đá, ghế gỗ và hệ thống chiếu sáng nhẹ nhàng. Đây là không gian thư giãn tuyệt vời sau một ngày dài – không chỉ dành cho gia chủ mà còn cho thú cưng.

🐾 Phòng chơi riêng cho mèo – “thiên đường” của những chú boss
Đây là điểm nhấn thú vị nhất trong căn nhà. Phòng chơi mèo riêng biệt với:
Hệ thống kệ leo trèo 3D gắn tường
Cây mèo bằng gỗ tích hợp chỗ trú ẩn, bậc leo
Ánh sáng ngập tràn qua cửa kính lớn, tạo cảm giác gần gũi thiên nhiên
Sàn gỗ ấm áp cho các boss tự do vui đùa
Thiết kế này thể hiện sự yêu thương, chăm sóc tận tâm của gia chủ dành cho thú cưng – không chỉ là nơi ở, mà là môi trường sống lý tưởng.

🛏️ Phòng ngủ master tối giản & tinh tế
Phong cách Japandi (Nhật – Bắc Âu) giúp không gian vừa yên tĩnh, vừa ấm áp:
🎋 Ốp gỗ tự nhiên, ánh sáng gián tiếp dịu nhẹ
🧺 Chăn ga tông nude phối màu cam đất hài hòa
🧘 Tủ âm tường tạo sự thoáng đãng và gọn gàng

💄 Không gian làm việc & thay đồ
📚 Kệ sách cao kịch trần, đèn LED viền hắt sáng tinh tế
🪑 Bàn làm việc cạnh cửa sổ tràn ngập ánh sáng tự nhiên
👉 Phù hợp cho làm việc, đọc sách, sáng tạo và thư giãn sau giờ hành chính.

🚿 Phòng tắm hiện đại và tối giản
🛁 Gạch ốp màu trung tính hiện đại
🪞 Tủ lavabo gỗ tự nhiên, mặt đá sáng cao cấp
🚿 Khu tắm kính riêng biệt giúp không gian gọn gàng và khô thoáng
🧺 Phòng giặt và phơi đồ riêng biệt
🧦 Máy giặt & máy sấy đặt chồng khoa học
📦 Tủ chứa & kệ treo đồ tối ưu công năng
👕 Không gian được thiết kế riêng biệt, giúp sinh hoạt hàng ngày ngăn nắp và dễ dàng.
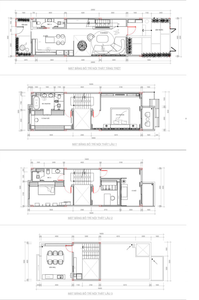
🗺️ Mặt bằng bố trí nội thất 4 tầng khoa học
Tầng trệt: Phòng khách – Bếp – WC – Sân trước & sau
Lầu 1: Phòng master – Thay đồ – WC riêng
Lầu 2: Phòng ngủ phụ – Phòng chơi mèo – WC
Lầu 3: Khu giặt & phơi – Kho – Kỹ thuật
📌 Kết luận
Ngôi nhà phố 4 tầng này là minh chứng sống động cho một không gian sống lý tưởng:
✔️ Thiết kế hiện đại, tối giản
✔️ Tối ưu hóa công năng
✔️ Thân thiện với thú cưng
✔️ Phù hợp cho gia đình trẻ yêu sự tiện nghi và cảm xúc





